Actualités

Toutes les annonces

Espace client

Nouvelle recherche Cette annonce m'intéresse

A vendre : Appartement T5 - 145m² - Bordeaux (33000)

Prix : 449 000,00 
Type de bien : Appartement
Pièces : 5 pièces / 4 chambres
Surface : 145,34m²
Type de chauffage : Gaz
Localité : Bordeaux (33000)
Référence : 33010/108

Description du bien

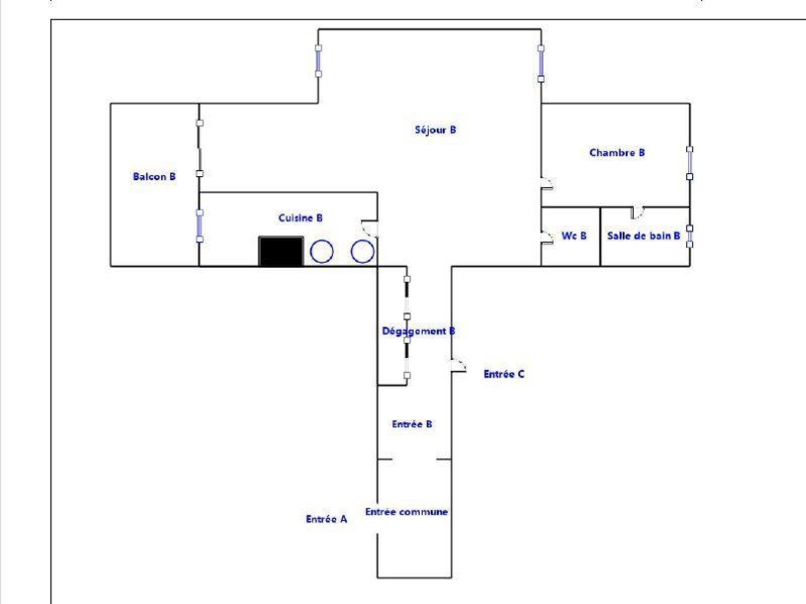
BORDEAUX (GIRONDE-33000): EXCLUSIVITE -CROIX BLANCHE - APPARTEMENT AVEC CELLIER INDIVIDUEL PRIVATIF ET PLACE DE PARKING . Situé au 9 eme étage d'un résidence avec piscine au 13 eme étage, cet appartement est le fruit de la réunion de 3 lots distincts. Il est modulable selon vos besoins et offre plusieurs possibilités d'exploitation . D'une surface de 145.34 m² carrez il bénéficie d'une superficie généreuse permettant d'accueillir un vaste appartement familial comme actuellement. En effet il se compose d'un grand couloir qui dessert d'un côté un salon /bibliothèque, une chambre, une salle de bains, un wc, un dressing et un balcon, ensuite un séjour avec balcon, une cuisine, une chambre, une salle de bains, + un 2eme wc et d'un autre coté un séjour avec balcon ( ou bureau et chambre) cuisine, salle de bains Double exposition EST/OUEST. Belle Vue dégagée sur BORDEAUX . Redistribution possible en 3 appartements indépendants ( 3 compteurs/3 chaudières). Résidence bien entretenue avec gardien, sécurisée- Ascenseur et Piscine. Adresse recherchée à proximité du Centre Ville, des écoles, des transports en commun et des commerces. Présence d'une crèche dans la résidence. Possibilité investissement locatif, colocation... Un cellier privatif ainsi qu'une place de parking dans un parking en sous sol sécurisé complètent le bien . Pour obtenir de plus amples renseignements et/ou visite merci de contacter notre office notarial, Géraldine GODIN au 06 83 74 26 78 .

Visites virtuelles

Performance énergétique

logement extrêmement consommateur d’énergie logement très performant passoire énergétique kg CO /m².an ² consommation (énergie primaire) émissions kWh/m².an 184 39 *
39 kg CO /m².an ² * Dont émissions de gaz à effet de serre peu d’émissions de CO émissions de CO très importantes ² ²

Montant des dépenses théoriques annuelles d’énergie

Coût annuel (min) : 2390.00 €
Coût annuel (max) : 3260.00 €

Caractéristiques

Type de chauffage : Gaz
En copropriété : oui
Nombre de salles de bain : 3
Nombre de balcons : 1
Nombre de lots : 165

Mandat

Nom du mandataire : Geraldine GODIN
Téléphone mandataire : 06 83 74 26 78
E-mail mandataire : Veuillez utiliser le formulaire de contact ci-dessous ...

Cette annonce m'intéresse

Captcha
* Les champs suivis d'un astérisque sont obligatoires.

Conformément à la loi n°78-17 du 6 janvier 1978 modifiée relative à l'informatique, aux fichiers et aux libertés, et au règlement européen 2016/679, dit Règlement Général sur la Protection des Données (RGPD), vous disposez d'un droit d'accès, de rectification, de suppression des informations qui vous concernent.
Navigateur non pris en charge

Le navigateur Internet Explorer que vous utilisez actuellement ne permet pas d'afficher ce site web correctement.

Nous vous conseillons de télécharger et d'utiliser un navigateur plus récent et sûr tel que Google Chrome, Microsoft Edge, Mozilla Firefox, ou Safari (pour Mac) par exemple.
OK